Markomannenhaus
Koordinaten: 51 58'07.14" N, 7 37'27.02" E Das Markomannenhaus ist das Vereinshaus des KStV Markomannia Münster. Es gehört zu den wenigen Verbindungshäusern in Münster, die sich trotz zweier Weltkriege und anderer Irrungen und Wirrungen des letzten Jahrhunderts noch immer im Eigentum ihrer Erbauer befinden. Die Grundsteinlegung erfolgte am 20. April 1911. Die Fertigstellung wurde bis November 1911 erreicht. 1936 durch das NS-Regime unrechtmäßig enteignet. Gegen Ende des 2. Weltkrieges wurde die linke Haushälfte durch eine Brandbombe zerstört. Am 15. November 1950 nach längerem Rechtsstreit an den wiedergegründeten Hausverein zurückgegeben. Bis 1954 in veränderter Form wieder aufgebaut, zuletzt 1996 in größerem Rahmen renoviert.
Internet: https://www.markomannia.org

Das Markomannenhaus heute

Das Haus im Bau
Geschichte
Vorgeschichte
Das Markomannenhaus in der Kampstraße 10 ist das älteste Verbindungshaus in Münster und das einzige, welches sich trotz der Wirren zweier Weltkriege noch immer im Besitz seiner Erbauer befindet. Nachdem in der Gründungsphase das Vereinslokal häufiger gewechselt hatte und auch die angemietete Etage in der Norbertstraße 1 gekündigt, wurde am 26. Juni 1910 auf dem Markomannentag einstimmig der Beschluß gefaßt, ein Haus "vorbehaltlich der Regelung der Geldfrage" zu bauen.
Hausbau

Grundsteinlegung
Am 15. August desselben Jahres wurde der Hausverein gegründet, einen Monat später am 13. September das Grundstück in der Kampstraße für 31.500 Mark erworben. Die Grundsteinlegung fand am 20. April 1911 durch Dr. Konrad Meyer statt, nachdem bereits im März mit den Arbeiten begonnen worden war. Der Grundstein enthält unter anderem ein Jahrbuch, ein festliches Dokument und einige Biermarken. Mit einer Kneipe am 5. November 1911 wurde das neue Haus eingeweiht.
Inschrift im Grundstein des Mk-Hauses: ERECTA MCMXI EREPTA MCMXXXVIII DESTRUCTA MCMXLV CORRUPTA MCMXLV REDUCTA MCML CONSTRUCTA MCMLIV STO MEIS
Gegen Ende des 1. Weltkriegs wurden viele öffentlichen Gebäude als Unterkünfte für die Truppen in Beschlag genommen, weshalb die Markomannia das Haus dem katholischen Lyzeum als Unterkunft anbot. In der folgenden Zeit der Geldentwertung und Hyperinflation gestaltete sich die Instandsetzung des Hauses als schwierig, konnte jedoch durch viel Eigenarbeit von Seiten der Aktivitas und Spenden von AHAH bewältigt werden. Besondere Erwähung mag hier Bb Georg Bauwens finden, welcher aus den USA großzügige Dollerspenden tätigte. Vom ihm stammt auch der Lederzirkel, welcher sich noch immer im Conventsraum bewundert werden kann und von Navajo Indianerinnen gestickt wurde.

Das Haus vor dem 2. Weltkrieg
Ebenfalls aus dieser Zeit stammt das Gemälde im Empfangsraum, das uns von Bb Karl Strunk vermacht worden ist und seit 1926 auf dem Haus hängt. Aus Finanznot wurde das Haus im Herbst 1936 an den Arbeitsdienst vermietet, nachdem sich die vereinigte Markomannia-Tuiskonia am 25. Mai 1936 in Folge des Doppelerlass hatte auflösen müssen. Um eine Enteigung durch das NS-Regime zu umgehen, legte der Vorstand des Hausvereins geschlossen seine Ämter nieder, so dass das Hausvereinsvermögen offiziell an die Vereinsmitglieder fiel. Als letztere schriftlich aufgefordert wurden, ihren Teil an den Staat abzutreten, wurde das Schreiben von niemandem beantwortet und auch die Vollstreckung beauftragten Rechtsanwälte unternahmen nichts. Außerdem wurden die Unterlagen und Urkunden im bischöflichen Archiv versteckt, so das das Haus nie offiziell überschrieben werden konnte und damit im Besitz der Markomannia blieb.
Der zweite Weltkrieg
Obwohl während des Krieges Münster zu über 90% dem Erdboden gleichgemacht wurde überstand das Markomannenhaus die Bombenangriffe verhältnissmäßig glimpflich. Lediglich die linke Haushälfte wurde durch eine Brandbombe zerstört. Sie wurde später nicht nach der ursprünglich symetrischen Anlage wieder aufgebaut, sondern in grader Linie verlängert, wodurch der Saal an Größe gewann und die Wohnetage um einige Zimmer erweitert werden konnte. Zunächst wurde das Haus jedoch auf Grund der großen Wohnungsnot von drei Familien bewohnt.
Wiederaufbau
Hausrenovierung
Aufbau
Das Haus verfügt über drei Etagen, sowie einen geräumigen Dachboden. Die ursprüngliche symmetrische Veranlagung wurde nach dem Krieg nicht wieder hergestellt, was zu einer Verlängerung des Saals und der Wohnetage geführt hat.
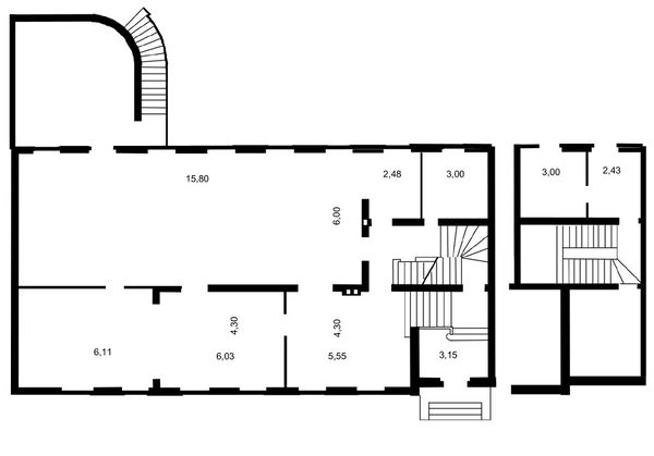
Keller

Der Keller des Hauses läßt sich grob in vier Bereiche Gliedern.
Faxenwohnung
Wie der Name schon sagt ist dieser Bereich eine in sich geschlossene Wohnung, die eigentlich für einen Faxen, also einen Hausmeister, gedacht ist. Zur Zeit wird die Wohnung jedoch regulär vermietet. Das untere Zimmer ist mit ca 3m x 3,80m als Schlafzimmer konzipiert. Daran schließt sich der Heizungskeller des Hauses an. Dahinter liegt das geräumige Badezimmer mit Badewanne. Durch die Fenster hat man einen schönen Blick auf den Garten.
Zimmer
Mittig unten liegen zwei Zimmer, welche durch eine kleine Gardrobe und ein gemeinsames Badezimmer voneinander getrennt werden. Das linke Zimmer verfügt über ein Hochbett, welches den Arbeitsraum des Zimmers erheblich vergrößert.
Kellerkneipe
Gegenüber den beiden Zimmern liegt die Kellerkneipe. Eines der Herzstücke des Hauses. Der rechte Bereich ist mit einer Theke ausgebaut, über der auch fest ein Beamer installiert ist. Die Kneipe ist multimedial ausgerüstet, verfügt über eine Anlage mit vier Boxen, die in den Ecken an der Decke des Raumes installiert sind, sowie zwei Verstärker und Bassboxen an der linken Wand. Auf etwa 2/3 des Raumes gegnüber der Theke befindet sich eine herunterlassbare Leinwand für den Beamer. Für Kneipen verfügt der Raum außerdem über ein "erprobtes" Klavier.
Kellerküche
Die Kellerküche liegt rechts der beiden Zimmer und beherbergt in zahlreichen Schränken neben Standard-Dekomaterial wie Servierten und Kerzen auch allerlei Werkzeug und Feuerzangenbowlen-Besteck. Zum kochen ist der Raum leider denkbar ungeeignet. Einzig zwei mobile Kochplatten und zwei "Warmhalter", sowie die große Ablagefläche können bei Gästeabenden hilfreich sein. Die Spühle in der hinteren Ecke des Raumes tut dabei auch wenig gute Dienste. Außerdem beherbt der Raum einen großen Kühlschrank mit verschiedensten Getränken. Diese werden mit einer Strichliste monatlich abgerechnet.
Faxenkeller
der Faxenkeller teilt sich in 3 Bereiche. Im ersten Teil befinden sich neben der Waschmaschine und dem Trockner die üblichen Gartengeräte, sowie zum Grillen notwendige Utensilien. Im zweiten Teil befinden sich allerlei Gerätschaften zum renovieren, also Farben, Tapeten, Kleister und Lacke. In einer kleinen Nische über den Regalen befindet sich außerdem ein Knotenpunkt des hausinternen LAN´s, welches die Wohn- mit der Kelleretage verbindet.
Bierkeller
Der Bierkeller geht von der Kellerküche ab und liegt etwa einen halben Meter tiefer. Hier werden große Mengen an Getränken gelagert, die den Verbrauch von 1-2 Monaten decken. Einige Flaschen Wein, sowie andere Spirituosen ergänzen den regulären Bedarf. Außerdem lagern hier noch weitere Stehtische für Veranstaltungen und ein großer Topf für das alljährliche Grünkohlessen. Einen Schlüssel für den Bierkeller haben nur der Hauswart, der Bierwart und der WK
Ergeschoss

Das Erdgeschoß enthalt nahezu alle offiziellen und repräsentativen Räume. Neben einem großen Saal mit eigener Theke, sind vorallem der Conventsraum und das Billardzimmer zentrale Orte des Vereinslebens.
Empfangsraum
Der erste wirkliche Raum hinter dem Atrium ist der Empfangsraum. Einige alte im Jugenstil gehaltene Möbel gewähren eine gehobene Atmosphäre zur Begrüßung bei Veranstaltungen, ohne das sich die Gesellschaft gleich in der größe des Saal verliert. Neben einem alten Gemälde schmücken die Wände eine Ehrentafeln mit den Namen der Gefallenen Markomannen aus dem 1. und 2. Weltkrieg, sowie eines der wenigen Originalen Plakate mit Wappen aller KV-Vereine aus dem Jahr 1905.
Conventsraum
Der zweite Raum der Frontseite ist der Conventsraum. Als eine der wenigen Verbindungen überhaupt verfügt die Markomannia zu diesem Zwecke über einen eigenen Raum, anstatt ihre Versammlung im Saal abzuhalten. Auf letzteren wird nur ausgewichen, wenn die Menge der anwesenden BbBb keinen ausreichenden Platz findet oder die Temperaturen im Hochsommer keine Sitzungen in einem kleinen Raum zulassen. Die Wände des Conventsraums werden von der Ahnengalerie ausgefüllt. Hier haben sich nahezu alle BbBb seit der Gründung 1901 mit einem Bild verewigt. Einen besonderen Schmuck stellt der auf Leder gestickte Zirkel dar, welcher 1917 von einer Navajo Indianerin gefertigt wurde. Der große Conventstisch lässt sich auseinandernehmen und der Raum sich somit als Erweiterung für den Saal bei Parties nutzen.
Billardzimmer
Seit 2004 verfügt die Aktivitas wieder über einen eigenen Billardtisch. Zu diesem Zweck wurde das ehemalige Fernsehzimmer umgestaltet und renoviert. Fernsehgucken ist allerdings immer noch möglich, zudem wurde eine Musikanlage installiert.
Saal
Der Saal ist mit über 90m² einer der größten Säle innerhalb der münsterschen Verbindungsszene. Daher gehört die Markomannia auch zu den wenigen Vereinen, die ihre Kommerse auch auf dem eigenen Haus feiern können. Die variable Bestuhlung ermöglicht einen raschen Umbau für Vorträge, Convente, Kommerse und andere Veranstaltungen. Der Saal kann auch für feierliche Veranstaltungen wie Hochzeiten und Geburtstage gemietet werden (WK). Die angeschlossene Theke gewährt eine gute Bierversorgung, das qualitativ sehr hochwertige Klavier eine gelungene musikalische Untermalung von Veranstaltungen. Für Vorträge kann auch eine große Leinwand an der Stirnseite des Saales heruntergelassen werden. Das Licht ist von der Theke aus stufenlos dimmbar. Die Anlage aus der Kellerkneipe lässt sich problemlos auch im Saal installieren.
Zwischengeschoss
Zwischen dem Erdgeschoss und der Wohnetage liegt noch ein Zwischengeschoss, welches das Chargenzimmer, die Damengardrobe und die Damentoilette beherbergt.
Chargenzimmer
Das Chargenzimmer ist ein kleiner abschließbarer Raum, der neben dem Wichs vor allem Vorstandsunterlagen, Couleurartikel u.ä. enthält. Er kann zum Ankleiden vor dem Kommers, aber auch für Vorstandssitzungen benutzt werden. Die Sofaecke lässt sich zur Not als Gästezimmer nutzen, der Raum verfügt über einen LAN / WLAN- Anschluss.
Damengardrobe
Die Damengardrobe ist genau genommen eine allgemeine Gardrobe bei allen größeren Veranstaltungen, da der Vorraum der Kellerkneipe kaum genug Platz für eine größere Menge Gäste bietet. Im Anschluss an die Gardrobe befindet sich die Damentoilette. Hinter der ersten abgeschlossenen verspiegelten Tür finden sich Reinigungsutensilien, sowie Nachfüllmaterial für die Toiletten, wie Flüssigseige, Einmalhandtücher, Toilettenpapier etc..
Wohnetage

Die Wohnetage ist der mehr oder weniger private Raum der Hausbewohner. Vor der Schwingtür befindet sich ein schwarzes Brett mit Aushängen aller Art, die im besonderen die BbBb betreffen (KV-Veranstaltungen, Tagesordnung der Convente, Wohnungsangenote von AHAH etc.). Auf dem Flur befindet sich ein allgemein zugängliches Telefon. Auf der Pinnwand neben dem Telefon werden die Semesterprogramme der anderen Korporationen gesammelt. Außerdem hängt hier ein Chargierkalender, der jedoch nicht mit dem Intranet abgeglichen wird.
Bad
Neben acht Zimmern unterschiedlicher Größe beherbergt die Etage ein Bad mit zwei Duschen, 2 Toiletten und drei Waschbecken.
Küche
Die Küche wird auch von den Hausbewohnern aus der Kelleretage (außer dem in der Faxenwohnung) mitgenutzt. Sie stellt zugleich einen weiteren Knotenpunkt im Vereinsleben dar, da sich hier praktisch zu jedem Zeitpunkt BbBb antreffen lassen. Neben einem Fernseher und einem Radio stehen hier auch mehrere, auch überregionale Tageszeitungen zur Verfügung. Zudem wird auch die auf dem Haus eintreffende Post hier gesammelt.
Zimmer
Die Wohnentage verfügt über 8 Zimmer unterschiedlicher Größe, die an Studenten in den ersten Semestern vermietet werden. Jedes Zimmer verfügt über einen eigenen Telefon und LAN-Anschluss. Die Mietpreise sind abhängig von der Größe des Zimmers und beginnen ab 120€ pro Monat warm, zuzüglich Stromkosten.
Dachboden
Über einen Aufstieg im Flur der Wohnetage gelangt man auf den Dachboden. Dieser ist in zwei Bereiche geteilt. Der hintere kleinere Bereich beherbergt neben Heizung und Lüftung auch alte Vorstandsordner. Der weit größere Teil dient als Lagerraum für Möbel, Partymaterial u.ä.. Außerdem findet sich hier ein weiterer Knotenpunkt des LAN´s, welcher die einzelnen Zimmer der Wohnetage mit dem Rest des Hauses verbindet.
siehe auch
- Geschichte des Vereins
- Bootshaus
- Hausverein
- Zimmervermietung
- Vermietung von Saal und Kellerkneipe